Skip to content

Polenstraat 118 | Almere

€ 1375,- p/m
Verhuurd

Leuk 2-kamerappartement in Almere Poort van circa 58m2 groot, gebouwd in 2009. Dit appartement ligt op de 3e verdieping van het markante complex Tribeca uit 2009 met prachtig vrij uitzicht waar je kunt genieten van een fraaie zonsondergang. Het appartement is zeer snel te bereiken vanuit Amsterdam, slecht 5 minuutjes vanaf de A1. Daarnaast zijn er diverse winkels en supermarkten op loopafstand, naast scholen en natuurlijk de haven, het strand aan het IJsselmeer. Ook de verdere voorzieningen in Poort worden steeds verder uitgebreid. Inmiddels is er een nieuwe Albert Heijn geopend, huisartsen, snackbar en diverse scholen en kinderdagverblijven zijn ook in de buurt. Ook is hier een groot wedstrijdzwembad en sporthal aanwezig!

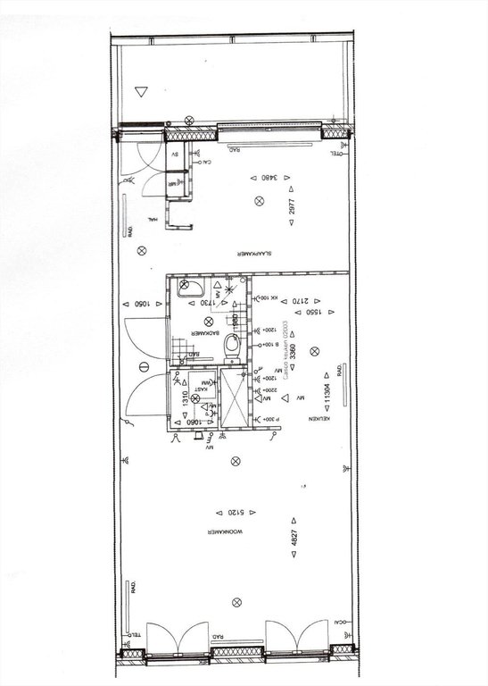
Indeling
Begane grond:
entree complex, brievenbussen 2 liften en drie gemeenschappelijke fietsenbergingen. Aan de achterzijde van het complex is er een eigen parkeerplek aanwezig.

Derde verdieping:
Entree, hal met meterkast toegang tot de ruime slaapkamer met inloopkast, ruime geheel betegelde badkamer met douche, wastafel en toilet. De zonnige woonkamer is voorzien van een fraaie laminaatvloer. Vanuit de woonkamer heb je mooi vrij uitzicht en de openslaande deuren naar de twee Franse balkons zorgen ervoor dat je hier ook heerlijk kan zonnen.
De keuken is luxe uitgevoerd met diverse inbouwapparatuur zoals een koel/vriescombinatie, combi-oven, inductie kookplaat en afzuigkap.
Bijzonderheden:
– energielabel A;
– eigen parkeerplaats;
– woonoppervlakte van circa 58 m²;

Huisdieren zijn niet toegestaan.

De woning wordt gestoffeerd verhuurd en is per …… beschikbaar voor onbepaalde tijd, minimaal 12 maanden. De huurprijs is €……,- euro per maand excl. gas/water/licht.

Kenmerken

Huurprijs€ 1375,- p/m
Oppervlakte58 m²
Slaapkamers1
Huurconditie

Interesse?

Geinteresseerd in deze woning? Laat je gegevens achter en we nemen zo spoedig mogelijk contact met je op.

    aanhuurmakelaar Amsterdam

    Heeft u vragen of wilt u meer informatie? Neem contact met mij op.

    Kenmerken

    Huurprijs€ 1375,- p/m
    StatusVerhuurd
    Aanvaarding per
    Object typeAppartement
    Oppervlakte58 m²
    Bouwjaar
    Aantal kamers2
    Aantal slaapkamers1
    Aantal badkamers
    Appartement soortGalerijflat
    Appartement aantal woonlagen1
    Appartement woonlaag3
    Garage soortGeen garage
    Woning liggingAan rustige weg, In woonwijk, Vrij uitzicht
    Tuin typeGeen tuin
    VoorzieningenMechanische ventilatie, Tv kabel, Lift