Skip to content

Middelburgweg 1 | Almere

€ 369.500,- /k.k.
Onder bod

Graag bieden wij u deze hoekwoning met ruime tuin (80m2) in de wijk Stedenwijk-Zuid te Almere Stad. Deze woning biedt een fijne ligging aan de rand van de woonwijk, met speelmogelijkheden voor de kinderen in het hofje achter de woning. Op loopafstand zijn er voorzieningen zoals de internationale school, supermarkt (Albert Heijn), gezondheidscentrum, voetbalvelden en openbaar vervoer. Op fietsafstand recreatieplas Het Weerwater en het Stadshart van Almere Stad waar u diverse winkels, supermarkten, terrasjes en cafeetjes, het NS-station Almere, het recreatiegebied het “Weerwater” en de bioscoop kunt vinden. De woning biedt tevens snelle verbindingen met de A6 en A1 richting Amsterdam, Schiphol, Utrecht en omstreken. Kortom, een toplocatie!

Indeling:

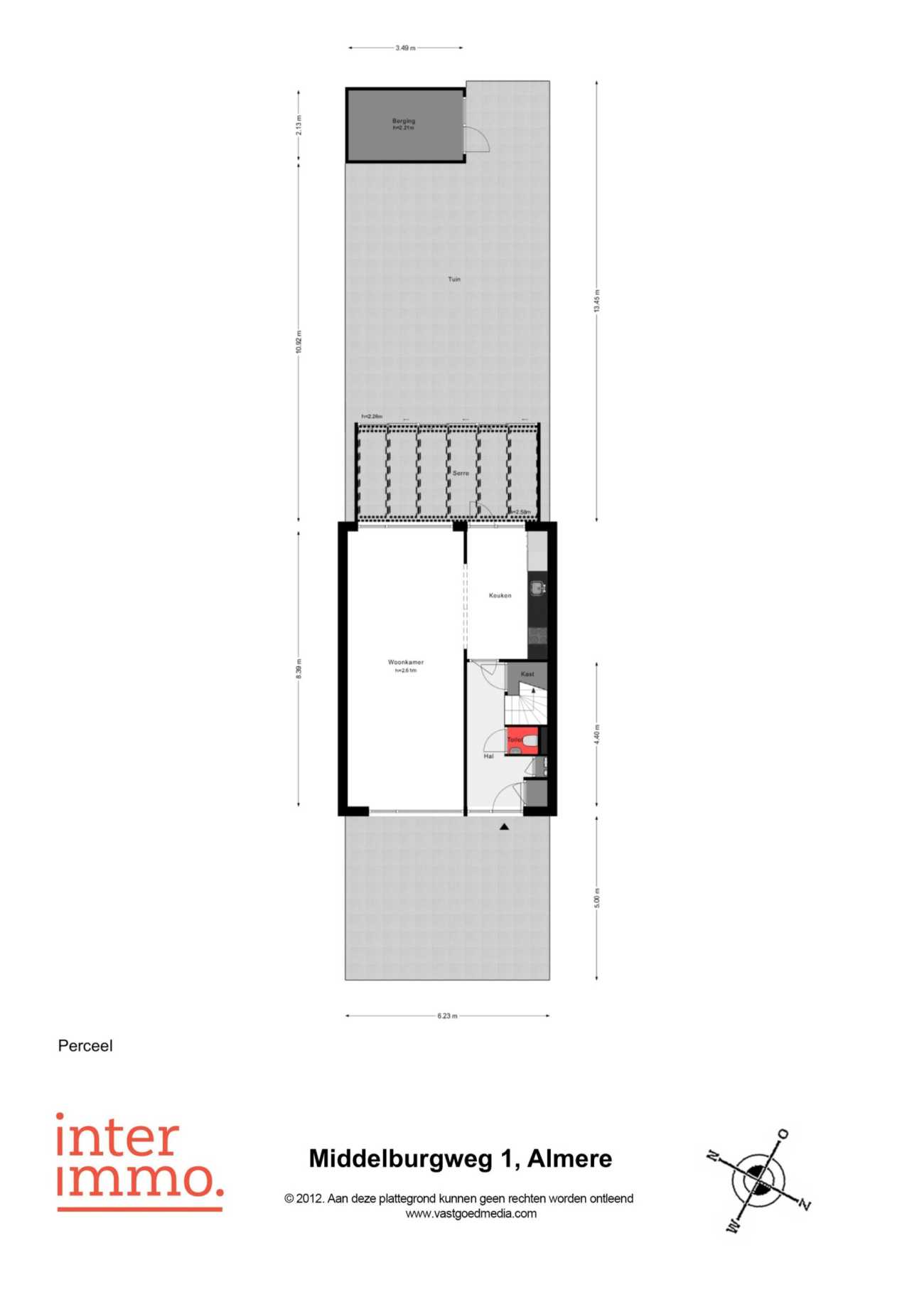
Begane grond:
U komt binnen in de hal die toegang geeft tot het toilet, de woonkamer, meterkast en de trapopgang. De ruime tuingerichte woonkamer is voorzien van laminaatvloer. De grote raampartijen halen het daglicht royaal naar binnen en geven de woning een open, ruimtelijk gevoel. De keuken beschikt over een ingebouwde kookplaat, oven, koelkast, vriezer en vaatwasser en is deels afgescheiden van de woonkamer, wat zorgt voor een prettige balans tussen openheid en privacy.

1e verdieping:
Via de vaste trap bereikt u de overloop op de eerste verdieping, die toegang biedt tot drie volwaardige slaapkamers en de badkamer. De slaapkamers zijn ruim van opzet en beschikken over grote raampartijen, wat zorgt voor een prettig lichtinval. De badkamer is volledig betegeld en functioneel ingericht met een toilet, wastafel en een douche met glazen wanden. Daarnaast beschikt deze verdieping nog over een berging.

Tuin:
De achtertuin is gelegen op het noordoosten, waardoor u in de ochtend kunt genieten van de eerste zonuren. Het formaat van de tuin maakt deze uitermate geschikt voor het creëren van een comfortabele buitenruimte, waar u in alle rust kunt ontspannen of gasten kunt ontvangen tijdens de warmere maanden. De tuin is onderhoudsvriendelijk aangelegd en voorzien van kunstgras en strakke sierbestrating. Aan de woning is een aangebouwde serre gerealiseerd, die zorgt voor een prettige overgang tussen binnen en buiten en het hele jaar door extra leefruimte biedt. Aan de achterzijde van de tuin bevindt zich een praktische, vrijstaande berging. Deze biedt voldoende ruimte voor het opbergen van tuinmeubilair, (tuin)gereedschap, fietsen of andere opslagbehoeften.

Bijzonderheden:
– Kindvriendelijke buurt;
– 3 ruime slaapkamers;
– Interne berging;
– Riante tuin van 80 m2;
– Aangebouwde serre;
– Oplevering in overleg;
– Bieden vanaf € 369.500,-

Kenmerken

Vraagprijs€ 369.500,- /k.k.
Oppervlakte102 m²
Slaapkamers3
Overige ruimte(n)Toilet, Hal, Overloop
TypeWoonhuis, Hoekwoning

Interesse?

Geinteresseerd in deze woning? Laat je gegevens achter en we nemen zo spoedig mogelijk contact met je op.

    huis verkopen

    Heeft u vragen of wilt u meer informatie? Neem contact met mij op.

    Kenmerken

    Vraagprijs€ 369.500,- /k.k.
    StatusOnder bod
    Aanvaarding perDirect
    BouwvormBestaande bouw
    Object typeWoonhuis
    Inhoud350 m³
    Oppervlakte102 m²
    Bouwjaar1982
    Energie klasseC
    Aantal kamers4
    Aantal slaapkamers3
    Aantal badkamers1
    Garage soortGeen garage
    TuinAchtertuin
    Tuin positieNoordoost
    Tuin oppervlakte78 m²
    Overige ruimte(n)Toilet, Hal, Overloop
    Soort verwarmingStadsverwarming
    Woning liggingAan rustige weg, In woonwijk
    Onderhoud binnenGoed
    Onderhoud buitenGoed
    Parkeer faciliteitenOpenbaar parkeren
    SchuurVrijstaand steen
    VoorzieningenTv kabel, Buitenzonwering, Glasvezel kabel
    Woonhuis soortEengezinswoning
    Woonhuis typeHoekwoning